Project met 8 luxe woningen in Balatonfüzfö Hongarije
voor permanente bewoning of recreatie.


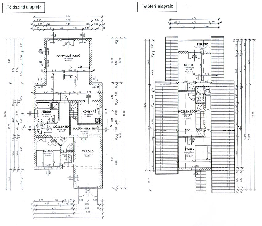
Bekijk de Plattegrond - Bekijk de mogelijke Indeling

De woningen kunnen casco of geheel compleet worden opgeleverd. De begane grond is praktisch ingericht met woonkamer, keuken, toilet, badkamer, hal, garage. De 1e verdieping is naar eigen wens in te richten en voorzien van balkon. Inspraak en wijzigingen in uitvoering zijn mogelijk. Neem contact met ons op voor de mogelijkheden.

  - betonnen trap en vloeren
  - Voorzien van kunststof kozijnen
  - Garagedeur met afstandsbediening.
  - Buitenmuur voorzien van natuursteen
  - Plaatsen van een houtkachel is mogelijk.
  - 125 m2 begane grond
  - ca. 691 m2 eigen grond
  - Vrij uitzicht